Thumb

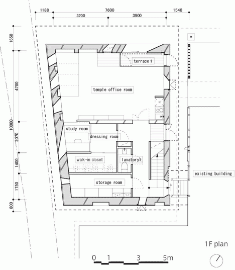
windows. (via dezeen - Enbutsu-do at Eifuku-ji Temple by Zai Shirakawa Architects & Associates)

Avatar

Semantha Jonathan

10164 pins   600 boards   4 followers

Follow

Other pins from

Semantha Jonathan